כל ציוד הנגישות במקום אחד – לרכישת אביזרי נגישות או קבלת הצעת מחיר:
חייגו 052-2737858, או שילחו מייל אל: nahav10@gmail.com
ציוד נגישות לנכים – אספקת אביזרי נגישות לנכים לבונים שירותי נכים ומקלחות נכים נגישות.
ציוד, הנחיות התקנה, מידות ושרטוטים.
נהב הנדסה בע"מ משווקת ציוד נגישות לנכים עם אביזרי הנגשה דרושים לבניית חדרי שירותי נכים, מקלחות נכים, תאים משולבים נגישים וכלל הציוד הנדרש להנגשה.
אנו גם מורשי נגישות ונסייע לבונים בהתאמת כל הציוד הנדרש לעמידה בדרישות תקנות הנגישות עבור מעבר ביקורת נגישות.
נעזור לך בהסברים, שרטוטים ופירוט אביזרי נגישות / אביזרים לנכים הדרושים להתקנה בשירותי נכים ומקלחות ויתר ציוד הנגישות הנדרש כדי לבנותם באופן נכון ותקני, כולל אספקת הציוד המתאים לכך:
מאחזים – מאחז נכים עשוי נירוסטה או מאחז יד עם ציפוי פלסטי לבן:
אביזרי נגישות לשירותי נכים, מקלחות נגישות וחדרי רחצה :
כיורים לנכים, ברז נכים עם ידית מרפק:
אביזרי עזר לשירותים ומקלחות:
מושבים מתקפלים וספסלי הלבשה מתקפלים למקלחות נכים ומלתחות נגישות :
אסלות נכים גבוהות נגישות :
משטחי אזהרה למדרגות, גבשושיות התראה, פסים מובילים מטיפוס 1:
פסי התראה מישושיים בקצה מדרגה, פס מוביל טיפוס 2:
כבש נגישות לנכים – רמפות לכיסאות גלגלים:

אמבטיה נגישה למבוגרים ונכים – כניסה ויציאה דרך דלת קדמית:

דוגמת שרטוטי התקנה של ציוד נגישות, תמיכה בהתקנה עפ"י התקן:
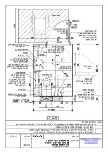
תכנית דוגמה להתקנת ציוד נגישות ואביזרים לנכים בשירותי נכים נגישים על פי דרישות תקנות הנגישות:
לצפיה במחשב – תכנית דוגמה – שרטוט שירותי נכים עם אסלה בצד – טיפוס 1 (5 פריסות בפורמט PDF)
לצפיה בנייד – 4 תכניות דוגמה:
1 – מבט על – שרטוט שירותי נכים עם אסלה בצד – טיפוס 1 – (מבט מלמעלה בפורמט JPEG) – לחזרה לעמוד יש להקיש על אחד הקטעים השחורים בשרטוט :
2 – מבט צד , 3 – מבט צד , 4 -מבט צדתכנית דוגמה – הדמיה (איזומטריה) לשירותי נכים עם אסלה בצד (לצפיה דרך מחשב – פורמט PDF)
הערה חשובה: כל הנתונים, המידות והמיקומים להתקנה המצוינים בדף זה הנם המלצות כלליות בלבד.
המיקום המדויק וההתקנה יעשו רק עפ"י התכניות וההוראות הפרטניות שיספק האדריכל ו/או יועץ הנגישות של המקום בו יותקן הציוד.
תקנות הנגישות מחייבות כי כל שירותים נגישים (שירותים לנכים) חייבים לכלול את הפריטים הבאים על פי מפרט ומידות מוגדרות, אשר יותקנו עפ"י המידות המצוינות בתקן:
מאחזים לנכים : מאחז לדלת כניסה, מאחז מתרומם לשירותי נכים, מאחז קבוע L, מתלה לדלת, אסלת נכים נגישה, כיור נכים נגיש, ברז נגיש – מומלץ ברז ידית מרפק (ברז מרפק נגיש), מראה, מדף, סבוניה, אמצעי יבוש ידיים ו- 2 אשפתונים. גובה התקנה אסלה לנכים: שגובה הקצה העליון של מושב האסלה יהיה 45-50 ס"מ מפני הרצפה (לתשומת לב – אסלת נכים מותקנת גבוה מעט מהמקובל בשירותים רגילים, כמו כן אסלה לנכים היא ארוכה מעט לעומת אסלה רגילה)
יודגש כי חברת נהב הנדסה היא משווקת ו/או מוכרת ציוד בלבד ואינה נושאת באחריות כלשהי על אופן ו/או טיב ו/או איכות ההתקנה ו/או חיבור למבנה של הציוד או האביזרים אשר נרכשו – והתקנתם הינה באחריות הלקוח בלבד. כמו כן החברה ו/או מי מטעמה אינם נושאים באחריות כלשהי למפרט הציוד, לעמידתו או אי עמידתו בתקנים, בבדיקות כלשהן וכד' אשר הינם באחריותם הבלעדית של יצרן ו/או ספק ו/או יבואן הציוד.
תקנות ותקנים רלוונטיים להתקנת אביזרי נגישות וציוד נגישות בחדרי שירותי נכים נגישים:
- קישור – תקן ישראלי נגישות – ת"י 1918 חלק 3.1: פנים הבניין – דרישות בסיסיות,
- קישור – תקן ישראלי נגישות – ת"י 1918 חלק 3.2: פנים הבניין – דרישות משלימות לשימושים ספציפיים
- קישור – שרטוט תא שירותים עם גישה דו צדדית -טיפוס 2
- מעבר אל תקנות הבניה – נגישות בבניין ציבורי חדש – חלק ח'1
- מעבר לעמוד ציוד לסימוני דרך נגישה – מסמרות נגישות ופסים מובילים























































